钻机网电系统
石油钻机网电控制系统分为全电动与半电动网电系统
全电动网电系统  
    石油钻机网电控制系统由10KV工业电网进线,经高压开关柜,分别送给两台10/0.6KV、3150KVA的干式环氧浇注变压器。变压器输出经GCS型低压抽屉式开关柜组成600V电网,从而给钻机电驱动控制系统提供了工作电源。在600V电网上同时并联进口的动态有源谐波抑制装置和TSF型动态无功功率补偿装置,对600V电网进行谐波抑制和无功功率补偿,改善电网质量,保障系统可靠运行。整套系统按两座控制房设计,即高压房与低压房。 
\
 
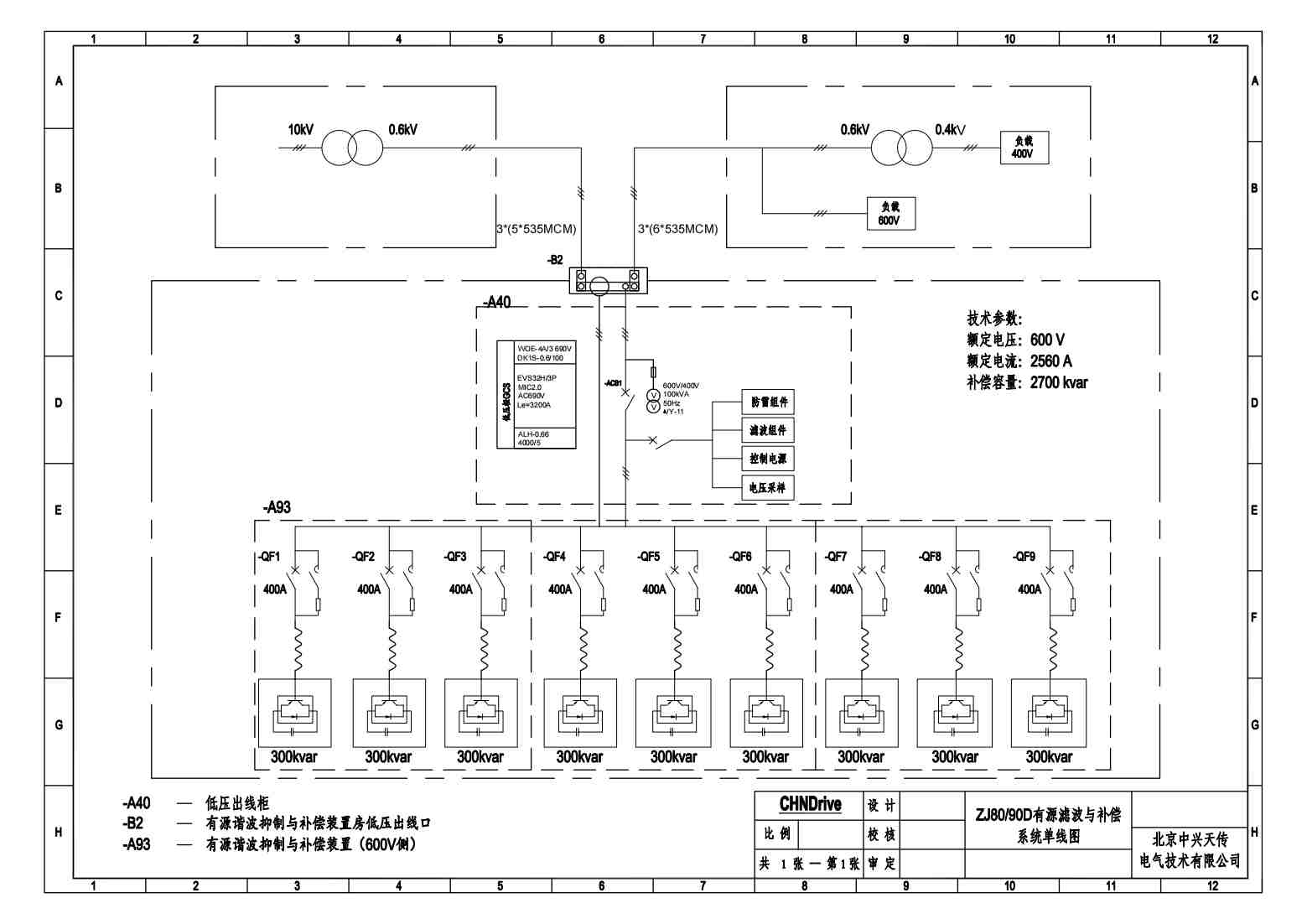
动态有源谐波抑制装置
 
    动态有源谐波抑制装置是采用数字逻辑电路进行电流检测和电流注入的电子电力产品。主要由有源滤波器构成,与被补偿的谐波负载或电网并联连接,通过实时检测非线性负载电流波形,分离出谐波信号,并把被检测到的谐波信号转化成为数字信号处理器(DSP)中的数字信号。同时,DSP数字信号处理器产生一系列PWM信号控制IGBT的触发,产生相位与电网谐波电流相反而大小相同的电流注入电网中,从而实现滤除谐波、动态补偿系统波动、提高功率因数等功能。 
\        \
高压开关柜 
●模块化结构            ●采用保护继电器和传感器 
●操作灵活              ●满足使用要求 
●具有“五防”闭锁保护功能 
动态无功功率补偿装置 
    采用晶闸管电流过零投切技术,实现零电流切入、零电流切除,无涌流、无冲击快速跟踪系统负荷无功变化,实时动态响应投切,响应时间≤30ms补偿基波无功功率,功率因数可达0.9以上。 
GCS型低压抽屉式开关柜 
    GCS型开关柜或抽屉柜是实现系统的低压供电、控制和保护,各控制单元具有检修锁定功能。 
APF+TSF型全数字大功率电能质量管理系统装置是由电压型有源滤波器和L-C型无源滤波器构成。对石油钻机用直流或变频电控制系统运行时所产生的谐波和无功功率具有抑制和补偿作用。 
\ 
半电动网电系统  
    原钻机驱动和供电方式:用3-4台柴油机组并车驱动泥浆泵、绞车和转盘,由辅助发电机或节能发电机为井场区和生活区提供电力。 
机械部分改造方案: 
    用3台800KW或1000KW或1100KW电动机+调速型液力耦合器(或减速箱),替代3台柴油机+液力减速正车箱;井场和生活用电由电控房内的400V变压器供给;当电网出现故障时用新增的应急电机或原应急系统进行应急作业(提钻具或转动盘活动钻具,防止卡钻)。 
电气部分改造分为两种方案: 
方案1:变频驱动方案 
    经移动式变配电系统,将电压变成600V,通过600V异步变频电动机+液力耦合器或减速箱为钻机提供动力。采用交流变频调速器驱动异步电动机,通过600V/380V干式变压器给钻机380VMCC/VFD系统供电。在工业电网停电工况下,由380V辅助发电机组给钻机MCC/VFD系统供电,应急系统进行钻机应急作业。
 \
方案2:软起驱动方案 
    经移动式变配电系统,将电压变成660V,通过660V异步电动机+调速型液力耦合器为钻机提供动力。采用智能电子软启动器起动异步电动机,通过660V/380V干式变压器给钻机380VMCC/VFD系统供电。在工业电网停电工况下,由380V辅助发电机组给钻机MCC/VFD系统供电,应急系统进行钻机应急作业。
 
 
\
 
\