8MW天然气压缩机驱动系统
1、系统简述
用于驱动天然气压缩机的3套变频调速系统,每套系统由下列主要部件组成.

3台感应电机
3套电压源型变频器,包括:
◆油式变频变压器
◆控制系统及I/O接口部分
◆用于变频器的冷却装置
◆选件
3套电力电缆
3套所供设备间的控制和信号缆


2、变频驱动系统技术描述及数据表
◆用于整流器设备的5绕组油浸式变压器
◆用于室外
◆减少空载损失的24脉冲整流变压器
◆高压绝缘等级LI175/AC128kV
◆低压绝缘等级LI240/AC220kV
◆低压系统绝缘等级:LI40/AC10kV
◆外部箱体部分颜色:RAL7033
绕组油式变压器数据表
◆适用标准DINEN/IEC42504/76
◆标称容量9600/2x2x2,400kVA
◆原边额定电压10,000V
◆分接调节范围±2x2.5%
◆副边额定电压2x2x2,200V
◆频率50Hz
◆矢量组别D,y4.75,d5.75,y5.25,d6.25
◆系统冷却:自然油冷与自然空冷
◆声压电平(1.0m)57dB(A)
◆声功率电平(1.0m)72dB(A)
◆阻抗电压4xapprox.6.5%
◆无载损耗12,500W
◆有载损耗(75℃)72,000W
中压变频器的数据单
◆数量3
◆冷却方式:水冷
◆环境温度5℃till40℃
◆海拔高度max.1,185ma.s.l.
◆运行时相对湿度:不允许结露
◆进线电压3/PE10,000V±10%
◆频率50Hz±2%
◆额定变频器效率98.5%
◆输入电压2x2x2.2kV
◆变频器额定输出电压
◆变频器额定输出电流
◆输入整流侧的脉冲数24脉冲
◆需要的辅助电源plus20Apre-chargingcurrentfor25sec
◆异步电机
◆鼠笼转子三相感应电机
◆被驱动设备基本信息
◆被驱动设备SIEMENS–Compressor压缩机
◆需要电机的功率8,100kW
◆电机的转速:速度范围1080–1800rpm:
◆转矩与速度的平方成比例
◆速度范围1800–1890rpm:
异步电机技术数据表
◆数量3
◆制造商SiemenscompanyLoher,inRuhstorf,Germany
◆设计、容差及制造标准
◆运行数据(计算值)
◆额定功率8,100kW
◆电压2×4.16kV
◆额定频率60.2Hz
◆额定电流2×660A
◆额定转速1800min-1
◆转向:逆时针
◆面向电机驱动端
◆额定转矩43,767Nm
◆功率因数(P/Pn=1)0.89
◆效率(P/Pn=1)97.8%
◆温升F/B
◆连接方式Y/Y星/星
◆运行周期类型S1
◆启动方法:变频启动
◆速度-转矩特性1M~n²,平方转矩特性
◆速度-转矩特性2within100%-105%WNn(=1800–1890min-1)
◆冷却参数
◆冷却方法IC81W
◆冷却水入口温度35°Cmax.
◆冷却水出口温度42°C
◆冷却水流量approx.35m3/h
◆冷却水污垢系数≤0.0001m2K/W
◆轴承数据
◆润滑方法强油润滑
◆轴承类型:滑动轴承
◆每个轴承油流量:每分钟16升
◆油类型VG46
◆轴端:锥形轴端
◆结构类型IM1003
◆防护类型II2GExpxeibIICT3(IEC60079-2)
◆防护等级
◆电机IP55
◆端子箱IP55
◆运行环境
◆运行环境温度-33℃upto50℃
◆进口处的油温应预先加热至+10℃
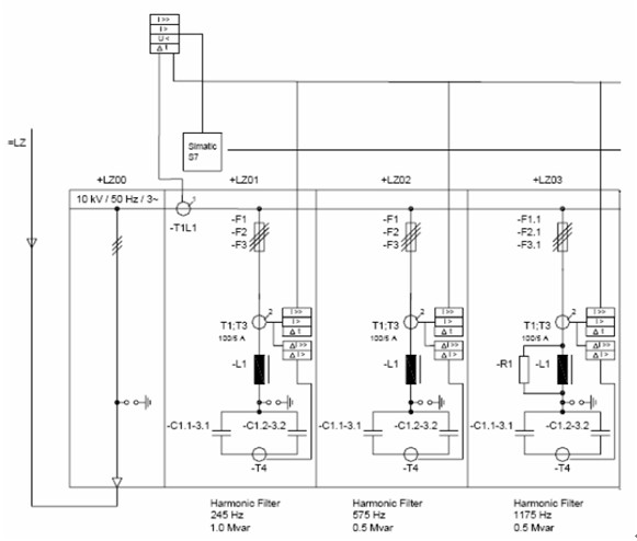
◆1套中压谐波滤波系统
3、谐波滤波系统单线图